Продажа дома

Нижегородская область, Бурцево д, Физкультурная, 189

194 м²
Площадь
181.00 м²
Жилая площадь
2
Этажность
17 сот
Площадь участка

11 700 000 ₽

60 310 ₽ за м²

ID объявления 12240558

Поделиться

Добавить в избранное

Жить в тишине и быть при этом рядом со всем необходимым.  Идеальное место для тех, кто ценит свежий воздух, тишину и природу
Представляем вашему вниманию современный загородный дом для круглогодичного проживания, расположенный в одном из самых живописных мест Богородского направления в пос. Бурцево, всего в 30 километрах от Нижнего Новгорода (удобный доступ как от Щербинок, так и от Автозавода)
Коттеджный посёлок закрытого типа, под круглосуточной охраной и видеонаблюдением по периметру
Дом был введён в эксплуатацию в 2016 году и отличается удачным угловым расположением с потрясающим видом на озеро. Особую привлекательность месту придаёт минимальное количество соседей и окружающая природная красота, создающая идеальные условия для круглогодичного проживания и отдыха на лоне природы.
Особое преимущество:                                       дом угловой, рядом с озером!  Ни шума, ни суеты. Максимум приватности, простора и уединения. Соседей почти не видно зато видно природу
Коммуникации и удобства:
Все центральные коммуникации: газ, электричество, водоснабжение и канализация
Частичный ремонт, можно жить
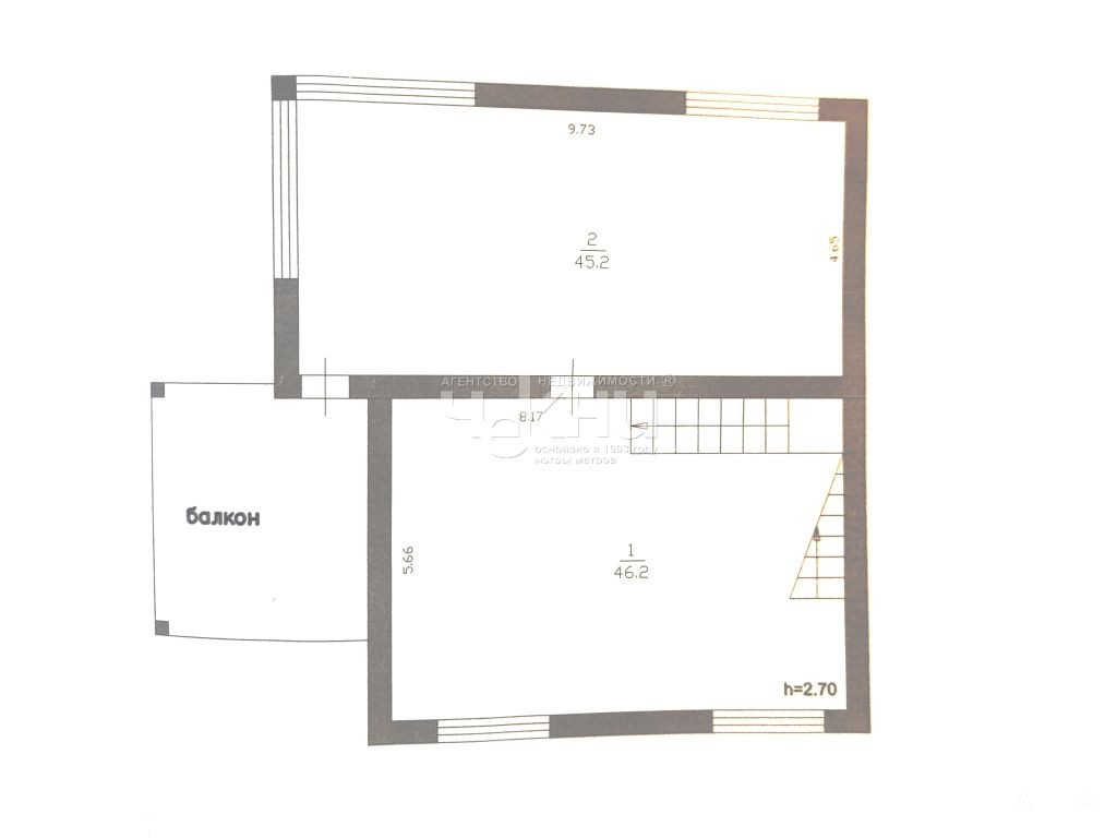
Планировка дома:
Два жилых этажа с современной функциональной планировкой
Терраса на втором этаже с выходом из спальни
Полноценный цокольный этаж
Панорамный вид на озеро со второго этажа
Характеристики участка:  
Рельеф участка: ровный, небольшой склон. Форма: прямоугольная.
Прочная конструкция и качественные материалы
Прочность конструкции:                                       дом рассчитан на долгие годы эксплуатации
При строительстве использованы только  высококачественные материалы, гарантирующие долговечность и надежность конструкции
Надежный фундамент
Стены из керамзитобетона
Металлочерепичная кровля
Этот дом идеально подойдёт для тех, кто ценит комфортное проживание на природе, высокий уровень безопасности, развитую инфраструктуру и экологически чистую среду. Здесь вы найдёте всё необходимое для счастливой и спокойной жизни вдали от городской суеты, но при этом сохраните удобную транспортную доступность к мегаполису
 
ТОРГ реальному покупателю!
 
Юридическая чистота:
Возможность проведения сделки любым удобным способом
Быстрый выход на сделку
Не альтернат
1 взрослый собственник
За подробной информацией и организацией просмотра обращайтесь по телефону. Готовы ответить на все вопросы и организовать показ в удобное для Вас время.

Дата обновления: 31 марта 2026